Projetos acadêmicos produzidos durante a faculdade.
Trabalho Final de Graduação
Projeto de gaming center para ensino e formação em desenvolvimento de jogos, feito no software AutoCAD (2D e 3D). 2012.
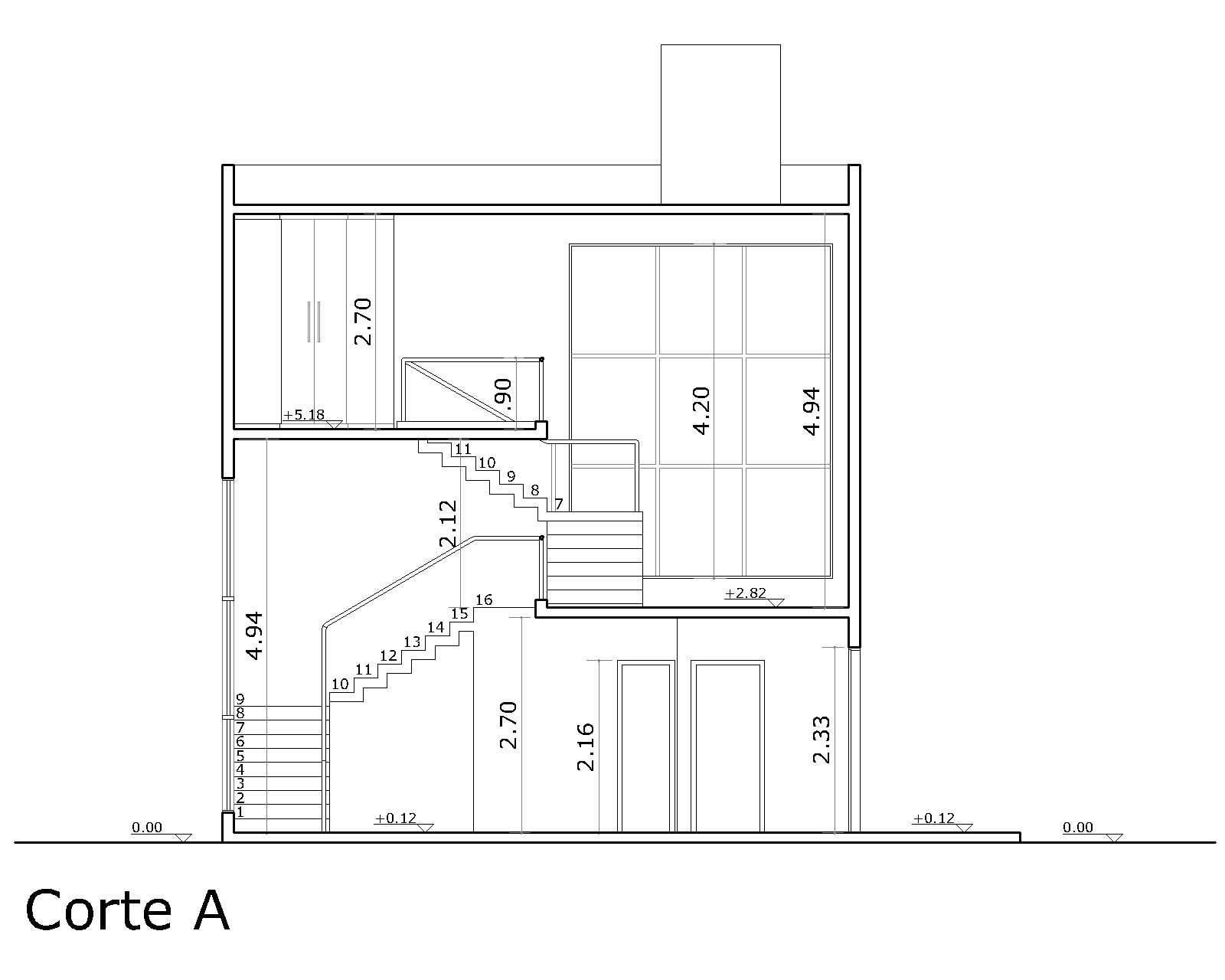
Projeto de residência unifamiliar
Casa Cubo. Layouts, corte e perspectivas de trabalho acadêmico feito nos softwares AutoCAD e SketchUp. 2011.
Projeto de edifício residencial
Layout do pavimento tipo. Trabalho acadêmico feito no software AutoCAD. 2011.
Projeto de edifício residencial
Layout do pavimento tipo e volumetria. Trabalho acadêmico feito no software AutoCAD (2D e 3D). 2010.
Projeto de paisagismo
Layout de paisagismo. Trabalho acadêmico feito nos softwares AutoCAD e SketchUp. 2010.


























